ΟΛΟΚΛΗΡΩΣΗ ΠΟΛΕΟΔΟΜΙΚΗΣ ΜΕΛΕΤΗΣ ΑΝΑΘΕΩΡΗΣΗΣ & ΕΠΕΚΤΑΣΗΣ ΣΤΙΣ Π.Ε. 11 «Άγιος Σπυρίδωνας» & Π.Ε. 13 «Κωτσέλα» ΤΗΣ ΠΟΛΗΣ ΤΗΣ ΚΕΡΚΥΡΑΣ
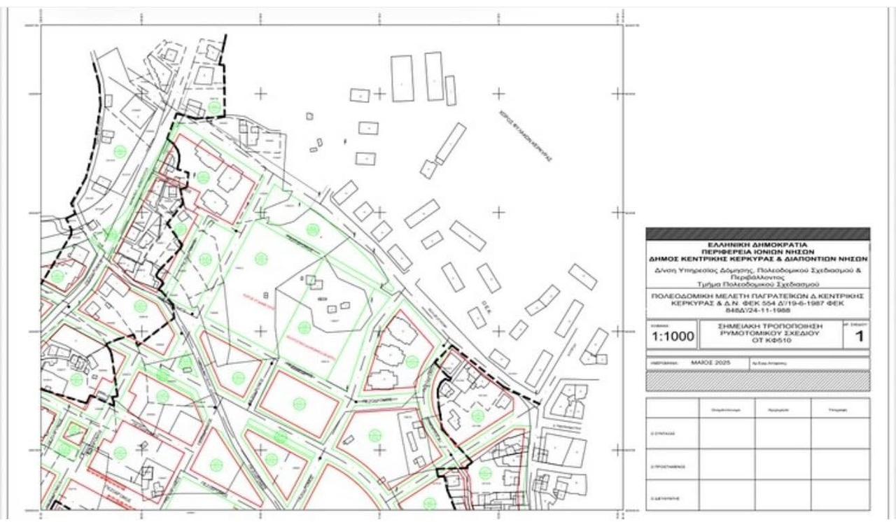
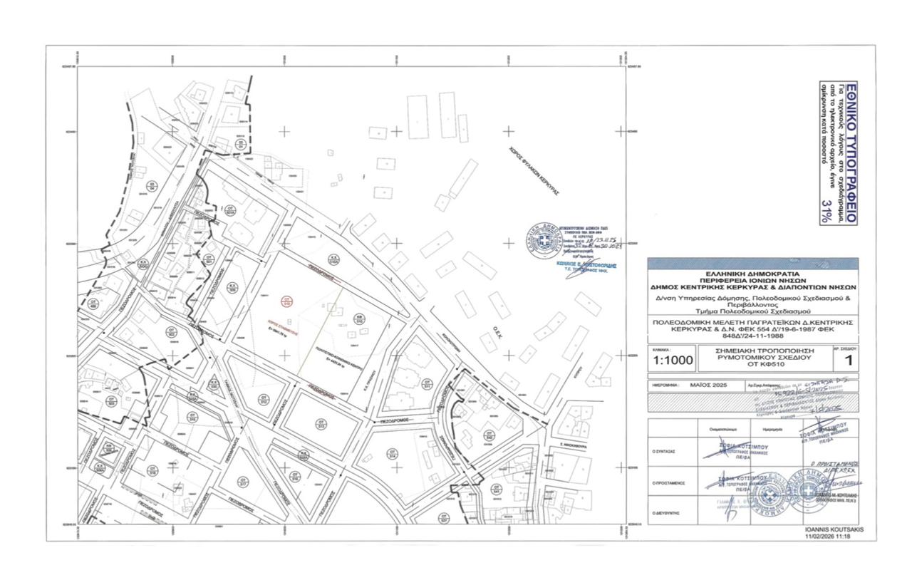
Σε ΦΕΚ η σημειακή τροποποίηση του ρυμοτομικού για την δημιουργία χώρου στάθμευσης στο οικοπέδου του «Λυρικού»
Στην Εφορεία Αρχαιοτήτων, 1500 καρτέλες απογραφής κτηρίων, στο πλαίσιο της Πολεοδομικής Μελέτης της Παλιάς Πόλης
ΜΕΛΕΤΗ ΔΙΟΡΘΩΣΗΣ ΠΡΑΞΗΣ ΕΦΑΡΜΟΓΗΣ Π.Ε. ΚΑΘΟΛΙΚΩΝ ΚΑΛΟΓΡΑΙΩΝ ΔΗΜΟΥ ΚΕΝΤΡΙΚΗΣ ΚΕΡΚΥΡΑΣ ΚΑΙ ΔΙΑΠΟΝΤΙΩΝ ΝΗΣΩΝ
🎙️ Συνέντευξη ΕΡΑ Κέρκυρας, 17-6-2025 ( Λυρικό – Πολεοδομικές Μελέτες – Κληροδότημα Δασκαλόπουλου – Δίκτυο Αδελφοποιημένων Ελληνικών Πόλεων με την Πάφο )
Σύσκεψη όλων των συναρμόδιων φορέων και με τη συμμετοχή του καθηγητή, Ευθύμιου Λέκκα, έπειτα από πρωτοβουλία του Περιφερειάρχη Ιονίων Νήσων για την οργάνωση του σχεδιασμού και της χρηματοδότησης που αφορά στην προστασία του ιστορικού κέντρου της Κέρκυρας από κάθε είδους φυσικό κίνδυνο
Έγκριση τοπικού ρυμοτομικού σχεδίου στην εκτός του εγκεκριμένου ρυμοτομικού σχεδίου και εκτός ορίων οικισμού περιοχή του Δήμου Κεντρικής Κέρκυρας και Διαποντίων Νήσων
Συνεδρίαση της Επιτροπής Παρακολούθησης του Διαθεσμικού Διεπιστημονικού Φορέα Διαχείρισης Παλαιάς Πόλης Κέρκυρας
Χορήγηση τεχνικού εξοπλισμού προς τις Υπηρεσίες Δόμησης για την λειτουργία του πληροφοριακού συστήματος e-Άδειες.
Σύσκεψη Περιφέρειας Ιονίων Νήσων και Δήμου Κεντρικής Κέρκυρας και ΔιαΠοντίων Νήσων ( Γιαλλινάς, Φοίνικας, παράκαμψη Πλατυτέρας )
Πρόσκληση 1ης ανάρτησης κτηματολογίου της μελέτης «ΕΙΔΙΚΗ ΠΟΛΕΟΔΟΜΙΚΗ ΜΕΛΕΤΗ ΓΙΑ ΤΗΝ ΠΑΛΙΑ ΠΟΛΗ ΤΗΣ ΚΕΡΚΥΡΑΣ”